Mis finques promociona esta exclusiva vivienda unifamiliar de obra nueva, ubicada en una de las mejores zonas del centro de Viladecavalls.
Forma parte de una promoción de solo tres casas, destacando por su ubicación y calidad de construcción. (Se encuentra actualmente en construcción)
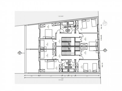
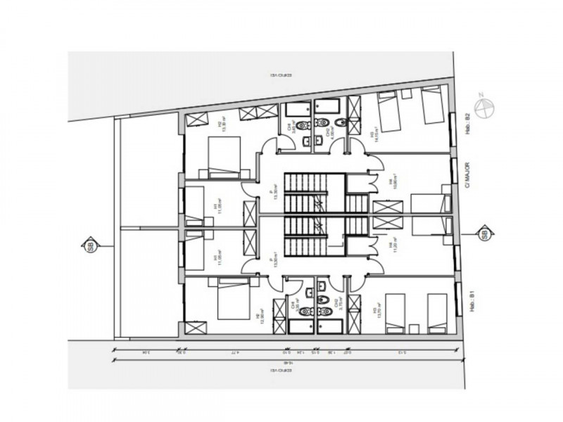
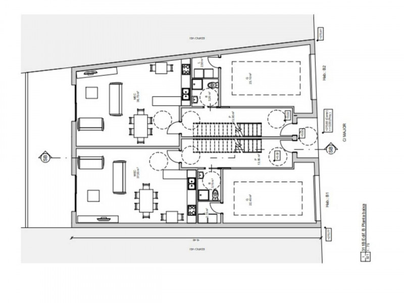
La casa tiene una superficie construida de 257 m² y se distribuye en tres plantas:
Planta baja: encontramos un amplio recibidor que conecta con el garaje de 33m2, con capacidad para dos vehículos, y una habitación doble con baño en suite y acceso directo al patio de 22m2.
Primera planta: una zona diáfana donde se ubican el salón-comedor con cocina abierta totalmente equipada de 44m2, un baño completo y dos habitaciones con vistas una de ellas en suite.
Segunda planta: se accede por una escalera muy luminosa gracias a sus grandes ventanales, donde se encuentra la suite principal, con baño de diseño, amplio vestidor y salida a terraza con vistas despejadas. Dispone de techo abuhardillado y luz natural.
La vivienda ha sido construida con acabados de alta calidad.
Su ubicación es ideal para disfrutar de los servicios del centro del pueblo: colegios, comercios, transporte, centros deportivos y más.
¿Lo vemos en una visita? Llámenos, el equipo de Mis Finques estará encantado de poder ayudarle!!!

MIS FINQUES - CENTRE

C/ Indústria, 6, 08202 Sabadell

Tel: 930129469
Solicitar información