Mis finques promociona aquesta exclusiva vivenda unifamiliar d'obra nova, situada en una de les millors zones del centre de Viladecavalls.
Forma part d'una promoció de només tres cases, destacant per la seva ubicació i qualitat de construcció.
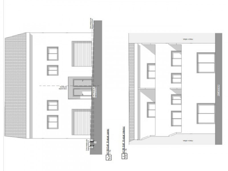
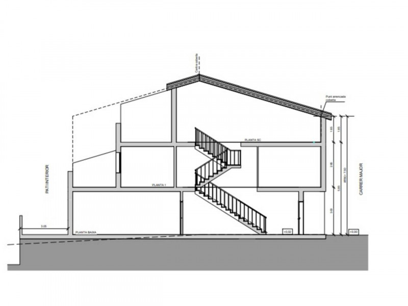
La casa té una superfície construïda de 250 m² i es distribueix en tres plantes:
Planta baixa: trobem un ampli rebedor que connecta amb el garatge, amb capacitat per a dos vehicles, i una habitació doble amb bany en suite i accés directe al pati.
Primera planta: una zona diàfana on es troben el saló-menjador amb sortida a una gran terrassa amb cuina oberta totalment equipada, un bany complet i dues habitacions amb vistes.
Segona planta: s'accedeix per una escala molt lluminosa gràcies als seus grans finestrals, on es troba la suite principal, amb bany de disseny, ampli vestidor i sortida a terrassa amb vistes desemparades. Disposa de sostre a doble vessant i llum natural..
La vivenda ha estat construïda amb acabats d'alta qualitat.
La seva ubicació és ideal per gaudir dels serveis del centre del poble: escoles, comerços, transport, centres esportius i més.
Ho veiem en una visita? Truqueu-nos, l'equip de Mis Finques estarà encantat de poder ajudar-vos!!!

MIS FINQUES - CENTRE

C/ Indústria, 6, 08202 Sabadell

Tel: 930129469
Sol·licitar informació